

Freehold Semi-Detached Industrial Park
Ampangan, Negeri Sembilan
20
Acres of Land
Freehold
Land Title
0-0s.f.
Built-Up
0-0s.f.
Typical Lot Sizes

About the Development
Unlock Your Future at Hub 8 Ampangan
Situated on 20 acres of prime freehold land, our industrial park offers an excellent opportunity for entrepreneurs to establish and grow their ventures through thoughtfully designed semi-detached industrial units built for functionality, efficiency, and long-term flexibility.
Strategically located with direct access to the LEKAS Highway, the development provides seamless connectivity to your customers, vendors, and business partners, with having convenient access to Kuala Lumpur, Senawang, and Seremban for efficient and scalable operations.
Visual Tour
Gallery
Strategic Location
Location

Site Coordinates
2.7458, 101.9930Key Highlights
Direct Access to Lekas Highway
Fast Connectivity to Kuala Lumpur, Seremban, and Senawang
Nearby Distances
Development Layout
Site Plan

Unit Specifications
| Type | Config | Dims | Built-up | Lot Size | |
|---|---|---|---|---|---|
| A1 | 2-Story | 35' x 70' | 3,595 s.f. | 7,800 s.f. | |
| A2 | 2-Story | 35' x 85' | 4,114 s.f. | 8,700 s.f. | |
| B1 | 3-Story +Lift | 35' x 70' | 5,924 s.f. | 7,800 s.f. | |
| B2 | 3-Story +Lift | 35' x 85' | 6,358 s.f. | 8,700 s.f. | |
| B3 | 3-Story +Lift | 40' x 85' | 7,181 s.f. | 9,425 s.f. |
Note: Selected lots may include additional land and lot sizes may vary. Please refer to the sales team for specific lot details.

Unit Specifications
| Type | Config | Dimensions | Built-up | Lot Size | |
|---|---|---|---|---|---|
| A1 | 2-Storey | 35' x 70' | 3,595 s.f. | 7,800 s.f. | |
| A2 | 2-Storey | 35' x 85' | 4,114 s.f. | 8,700 s.f. | |
| B1 | 3-Storey with Lift | 35' x 70' | 5,924 s.f. | 7,800 s.f. | |
| B2 | 3-Storey with Lift | 35' x 85' | 6,358 s.f. | 8,700 s.f. | |
| B3 | 3-Storey with Lift | 40' x 85' | 7,181 s.f. | 9,425 s.f. |
Note: Selected lots may include additional land and lot sizes may vary. Please refer to the sales team for specific lot details.
Unit Layouts
Floorplans
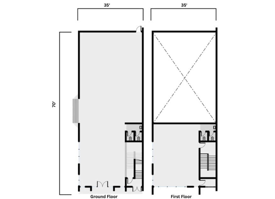
Type A1
2-Storey Semi-Detached Factory

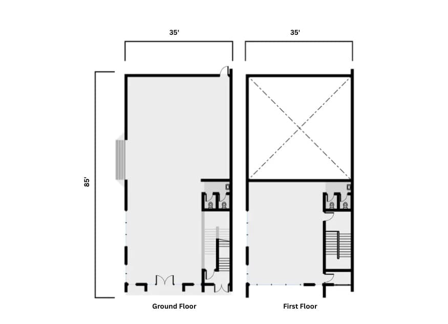
Type A2
2-Storey Semi-Detached Factory

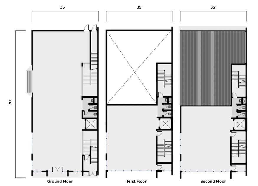
Type B1
3-Storey Semi-Detached Factory with Lift

Type B2
3-Storey Semi-Detached Factory with Lift

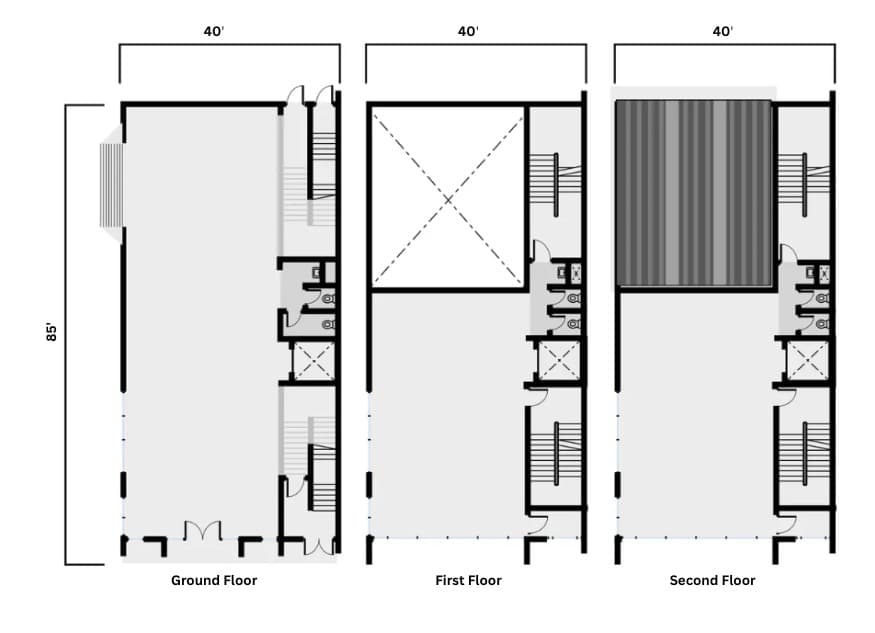
Type B3
3-Storey Semi-Detached Factory with Lift

Construction Updates
Site Progress
The Developer
About Us


Peter's Group of Companies
Established 1973
Hub 8 Industrial Park is developed by Kiara Kasturi Sdn Bhd, a member of Peter's Group of Companies. With decades of experience in property development since 1973, the group continues to deliver quality developments that meet the evolving needs of businesses and communities.
Visit Corporate Website